詳細情報
- 物件区分
- 貸家
- 名称
- エクセレント
- 住所
- 十和田市元町東四丁目7-11~27
- 建物構造
- 木造 2階建
- 築年
- 平成12年
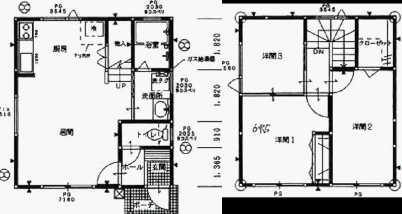
- 間取詳細
- 3LDK
(1F:LDK14 2F:洋室5.5、6帖、4帖)
- 契約更新
- 2年
- 駐車台数
- 2台
- 給湯方式
- プロパンガス
- キッチン
- ガスコンロ設置可
- 冷暖房設備
- 暖房
- 上下水道設備
- 上下水道
- その他設備
- バス・トイレ別、洗面所、室内洗濯機置場、テレビ受信環境(BSCSなし)
- ペット同居
- 不可
- 小/中学校学区
- ちとせ小学校/甲東中学校
- 周辺施設
- 備考
空室情報
| 賃料 | 5.5万円/月 |
|---|
| 管理費 | - |
|---|---|
| 敷金 | 1ヶ月 |
| 礼金 | - |
| 取引態様 | 仲介 |
| 仲介手数料 | 1ヶ月 |
※その他保険料等の費用がありますので、必要費用については別途お問い合わせください。







C号室、令和8年1月中旬ごろ入居可能です。